Contractors Crank Out More Proposals When Partnering With Enoch Group Data

Finding commercial construction projects is much easier and more profitable for contractors when partnering with Enoch Group to provide leads and valuable project data.

Enoch Group clients receive construction site plans that have already been researched to find their trade item(s) along with their counts, volume, square and or linear foot quantities, project details, specifications, addendums, proposal due by date and project contact(s).

The program is very simple. Clients receive an invitation from Enoch Group to preview a construction plan sheet that includes their trade. Should the client desire the opportunity to produce a proposal for items on the preview, Enoch Group emails the data to the client.

Enoch Group also prepares takeoff quantity packages for clients who supply their own plans.

This construction project data is a game changer for contractors who desire to transition into more commercial business as well as for seasoned commercial contractors who want to keep project leads in the pipeline while they spend valuable time on production and running their business. This simple tweak in operations help minimize the up and down cycles many contractors face when they are busy working with little time to produce proposals then experience a lull in revenue when they run out of sold projects. Then they’re back to the painful grind of the ever-so-popular looking for work hussle.

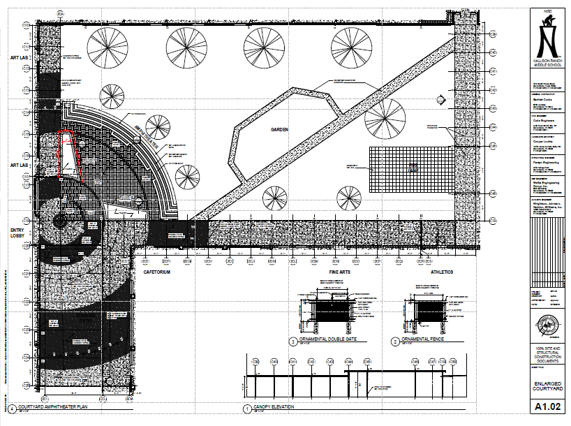
The construction site plan sheet below left is an example of a construction site plan sheet that is included in the invitation preview. The example below right is the same construction site plan sheet but different trade items have been identified by separate colors with their quantities totalled in the upper left corner of the plan takeoff sheet.

This is where much of the time consuming work is done by Enoch Group so the client can be more productive elsewhere. This is where the client will learn the required quantities for each item in order to prepare a responsible proposal they can submit to the proper General or Project Manager.

Enoch Group is currently reaching out to network with contractors and develop relationships to mutually benefit each other in a spirit of true teamwork.

To start receiving invitations to preview construction plan sheets or inquire about having material quantities totalled from their own supplied plans, contractors may leave a message that includes their trade item(s) and email address on Enoch Group’s Contact Us page.

Comments

Leave a Reply

Your email address will not be published. Required fields are marked *